The Nest - Plans

The Nest is a smart, efficient, and light-filled modern backyard cottage. It can be positioned for extra privacy or to soak up as much daylight as possible—all while fitting naturally into the landscape. It is positioned for the covered porch and living space to merge with the outdoors.
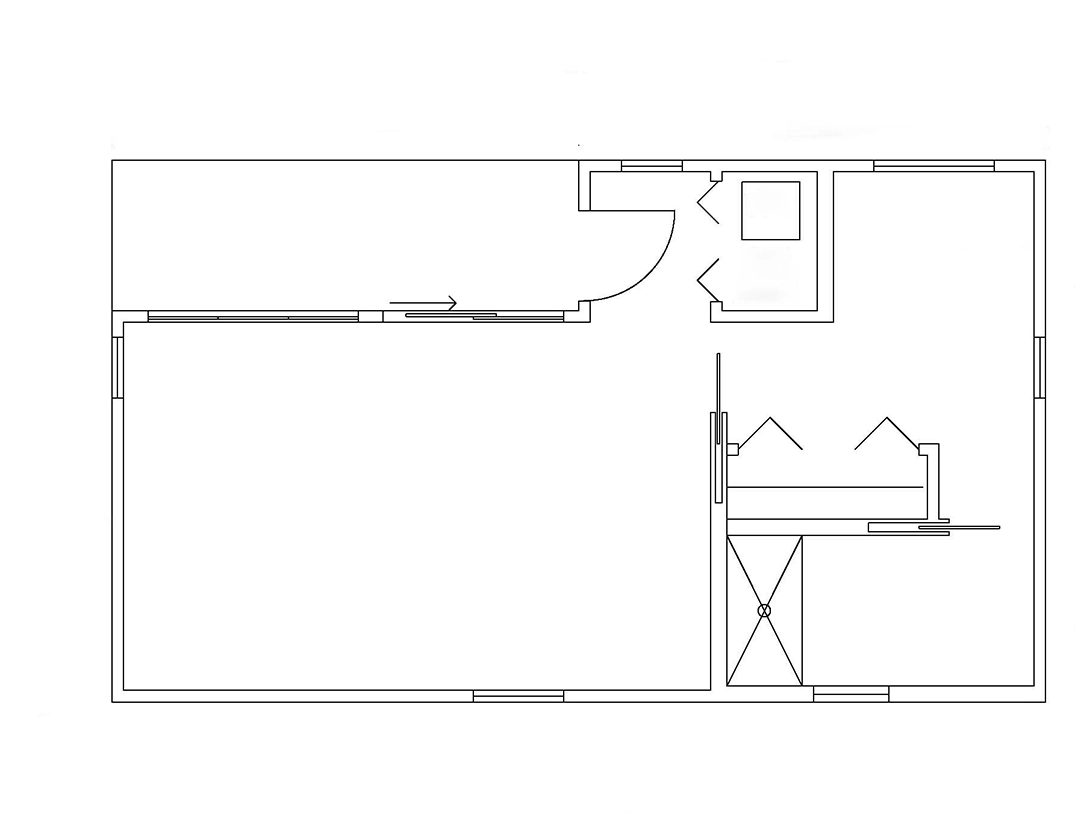
Designed on a single level, it’s perfect for downsizing without giving up comfort or style. It also has 3’ wide doors and open shower plan to make it more accessible for wheel chairs or walkers. With maximum efficiency of space, it has a full size washer and dryer as well as 10 linear feet of kitchen including dishwasher, oven, range, sink, and refrigerator.
Vaulted ceilings go from 8’ to 12’ giving The Nest an open and airy feel. The lofted spaces add bonus storage.
The Nest Construction Set is a downloadable PDF including fully dimensioned and scaled drawings. Included are floor plans, elevations, foundation and roof plans, sections, and window & door schedule. Design-forward, contractor-ready or DIY-ready.















